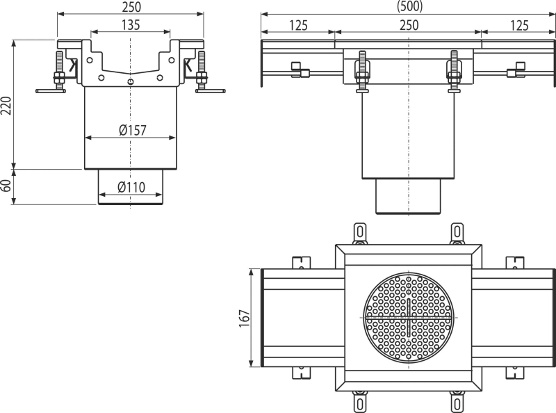
სამრეწველო იატაკის ტრაპი ოთხკუთხედი სადინარით 250×250-135, უჟანგავი ფოლადი AISI 304

APR6-2211-135

სველი წყლის ჩამკეტის წყლის მილის სიმაღლე50 mm
  • დიდი სამრეწველო ობიექტების დრენაჟისთვის, ისევე როგორც სხვა კომერციული ობიექტების შენობების შიგნით, მაგალითად, ქიმიურ და კვების მრეწველობაში
  • დიდი მოცულობის წყლის გადინებისთვის და დიდი დისტანციისთვის
  • ტრაპი​უჟანგავი ფოლადი დამუშავებული მჟავითა და პასივიზაციის მეთოდით, რაც იძლევა უჟანგავი ფოლადის და მისი ფუნქციონალური თვისებების მრავალი წლის განმავლობაში შენარჩუნების გარანტიას
  • მთელი სისტემა მყარად არის დაფიქსირებული ბეტონში, რეგულირებადი ფეხებითა და გვერდითი წამყვანებით
  • გამოყენებული შუასადები უზრუნველყოფს წყალგაუმტარ კავშირს
  • ტრაპის მასალა: უჟანგავი ფოლადი, 1.5 mm, DIN 1,4301
რაოდენობა (შეფუთვა) 1 ცალი
რაოდენობა (პლატა) - ცალი
ზომები (ცალი) 500×280×250 მმ
წონა (ცალი) 5,5455 კგ
წონა (შეფუთვა) 5,5455 კგ
წონა (პლატაზე) - კგ
  • გადინება
  • რეგულირებადი ფეხები 4 ცალი.
  • წყლის ჩამკეტი
  • სამონტაჟო ნაკრები
КодEANТехнический лист
APR6-2211-1358595580573508Technický list